80平方米的小户型忠泰策略,满足三口之家的生活,比大户型还实用!
再多的装饰都不如“温暖”来的实在,如果住在奢华的别墅却没有家人的陪伴那么我还是愿意和家人一起过着简单平淡的生活。其实,家并不需要多么奢华的外表和装饰,只要一家人在一起每天都很幸福,就可以构成一个温暖的家。我们的家从来不需要过多的修饰和装饰,只要充满烟火气息就会变得很温暖,简约的装修却并不简单,简化设计让80平方米的小户型,满足一家三口的生活需求,比大户型还实用。
房屋户型:三室
房屋面积:80平方米
装修预算:30到50万元
所在城市:深圳
设计师:曹曦文
主要材料:清水模、烤漆钢板、企口板、镀铝锌板等

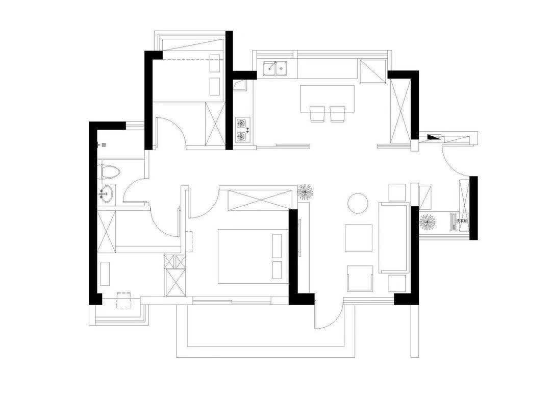
【户型图】
原始的户型当中还是存在一些小问题的,比如进门的玄关面积比较小不能满足日常的生活需求,另外除了要满足三口之家的居住需求以外还有预留一个客房方便父母和朋友的临时小住,另外家里也需要更多的储物空间,等以后孩子长大之后也会更加的方便。

为了解决户型上存在的缺陷,装修的时候对原始的户型做出了一些调整,来满足业主一家人的生活需求,另外设计了更多的储物空间,来满足一家人的日常需求。

【玄关】
设计亮点:简化鞋柜
本来进门的位置比较小,不过房间的面积比较小不能设计一个独立的玄关空间,只能在靠着墙壁的位置设计了一个比较窄的鞋柜,鞋柜可以满足一家人的日常需求忠泰策略,黑白简约的色彩运用也在视觉上扩大了空间。


设计亮点:设计洗衣区
考虑到平时家里会经常用到洗衣机,放置在卫生间或者是卧室旁边的阳台都会有一点影响家人的睡眠,所以装修的时候就把洗衣机的区域设计在了入户这里,使用的时候也不会有噪音的问题了。


【客厅】
设计亮点:隐藏式电视柜
为了防止家里的小孩子长时间看电视会影响视力,所以将电视机设计在了柜子里面,不仅可以防止孩子长时间看电视,还可以增加客厅的储物空间。


设计亮点:简约灰色
客厅选择了以灰色为主的设计,灰色和白色都是比较淡雅的颜色,让客厅的空间看起来也更加大气通透。

【厨房】
设计亮点:集成灶设计
厨房选择了集成灶的设计,方便日常的做饭,开放式的厨房光线也很好。


【餐厅】
设计亮点:卡座设计
餐厅设计了卡座,来增加储物空间,同时也可以容纳更多的人用餐。


【卧室】
设计亮点:玻璃推拉门
卧室和阳台之间设计了一个玻璃的推拉门,让室内的光线变得更好。

【儿童房】
设计亮点:榻榻米设计
儿童房选择了能够用来储物的榻榻米床铺,增加了储物空间。

总结:对于小户型来说家里的储物空间是一件很重要的事情忠泰策略,这样的设计也让小户型变得更加实用。
牛配资提示:文章来自网络,不代表本站观点。